Zuidendijk 357 – Dordrecht, 3317 NR
Wauw! Een unieke, herbouwde dijkwoning geheel in klassieke stijl maar met moderne accenten en de kwaliteitseisen van nu. Namens de verkopers mogen wij u deze prachtige, instapklare woning aanbieden, gelegen op een rustig deel van de Zuidendijk met landelijk karakter. De woning combineert een karaktervolle uitstraling met hedendaags comfort. Bij binnenkomst valt direct het lichtinvalLees verder
Wauw! Een unieke, herbouwde dijkwoning geheel in klassieke stijl maar met moderne accenten en de kwaliteitseisen van nu.
Namens de verkopers mogen wij u deze prachtige, instapklare woning aanbieden, gelegen op een rustig deel van de Zuidendijk met landelijk karakter.
De woning combineert een karaktervolle uitstraling met hedendaags comfort. Bij binnenkomst valt direct het lichtinval op, wat zorgt voor een fijne en open sfeer. De hoogwaardige maatwerk woonkeuken, opgetrokken uit volledig massief hardhout sluit perfect aan op het totaalplaatje en is met oog voor detail afgewerkt.
De woonkamer ligt op een lager niveau, wat zorgt voor een speelse en verrassende indeling. Strakke gestucte wanden en een moderne gevlinderde massieve betonvloer geven het geheel een eigentijdse uitstraling. Via de openslaande deuren wordt de verbinding met buiten optimaal benut.
Op de verdieping bevinden zich drie slaapkamers en een stijlvolle badkamer. De zichtbare houten dakconstructie voegt extra charme en sfeer toe. Opvallend aan de woning is de combinatie van industriële elementen, gebikt metselwerk en een volledig maatwerk interieur, waarbij ronde vormen de verbinding maken tussen de hardere industriële lijn en de verfijnde hoogwaardige afwerking.
De royale achtertuin, gelegen op het zuidwesten, is circa 12 meter breed en biedt volop ruimte om te genieten van de zon. Aan de zijkant van de woning is er parkeergelegenheid voor twee auto’s op eigen terrein.
Nieuwsgierig geworden? Maak snel een afspraak voor een bezichtiging en ervaar zelf de charme van deze bijzondere woning.
De oplevering van de woning is in overleg, maar kan binnen afzienbare tijd.
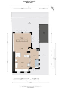
De indeling is als volgt:
Begane grond:
– Entree op dijkniveau.
– Garderoberuimte.
– Met marmer afgewerkte toiletruimte met fonteintje en doucheruimte. het toilet is voorzien van ingebouwde afzuiging en natuurlijke ventilatie.
– Kamer momenteel in gebruik als werkkamer, maar kan ook gebruikt worden als slaapkamer.
– Vaste kast met de opstelplaats van de c.v-ketel en meterkast.
– Moderne keuken aan de voorzijde is voorzien van keramische kookplaat met afzuiging, brede oven, vaatwasser, spoelbak, losstaande koelkast en diverse laden/kasten.
– Hoogteverschil richting de woonkamer, opvallend is hierbij de hoogte van 3 meter en aan de voorzijde zelfs 4 meter. Via de openslaande deuren is de achtertuin te bereiken.
Eerste verdieping:
– Slaapkamer aan de voorzijde (ca. 3.93 m x 2.34 m) met opstelplaats voor de wasapparatuur.
– Slaapkamer aan de achterzijde (ca. 5.54 m x 3.90 m) beschikt over openslaande deuren richting het dak van de uitbouw.
– Slaapkamer aan de westzijde (ca. 5.03 m x 2.58 m).
– De badkamer beschikt over een solid-surface ligbad, douche, toilet met ingebouwde afzuiging en wastafel. De badkamer is volledig maatwerk, waarbij de strakke solid-surface accentwand contrasteert met de massief granieten wand en vloer bekleding.
Buiten:
– De achtertuin is op het zuidwesten gesitueerd en aangelegd met natuursteen ‘kinderkopjes’ bestrating en schelpen, beplanting en nader in te zaaien strook grond aan de achterzijde. Ook heeft de tuin een hoogteverschil.
– De zijtuin is gesitueerd op het noordoosten en is aangelegd met natuursteen ‘kinderkopjes’ wat drukvast is aangebracht, waardoor het geschikt is voor zware voertuigen. De zijtuin biedt ruimte voor parkeerplaatsen op eigen grond voor twee voertuigen.
– Berging (ca. 5.78 m x 2.76 m).
Diversen:
– Energielabel A.
– De bouw van het casco heeft tussen 2015 en 2018 plaatsgevonden.
– De badkamer is in 2023 geplaatst.
– De keuken is in 2022 geplaatst.
– De begane grond beschikt over vloerverwarming, de 1e verdieping is verwarmd via Jaga convectoren.
– C.v-ketel komt uit 2015.
– Hardhouten kozijnen met deels HR++ glas.
Constructie:
De woning is opnieuw gefundeerd op een paalfundering en is middels een dilatatievoeg losgezet van de directe buren. Het nieuwe casco van de woning is voorzien van een betonnen ringbalk met daarop een zware constructievloer. Vanuit deze basis is de begane grond opgebouwd met een stalen frame met ringbalkconstructie door het gehele huis. Een deel van deze constructie is in het zicht gelaten vanuit een architectonisch oogpunt. De opbouw is gedaan met kalkzandsteen wanden met daarbij veel aandacht voor de isolatie, het voorkomen van koudebruggen en het afvoeren van mogelijke condensatie. De buitenzijde van de woning is opgetrokken uit duurzame, onderhoudsvrije materialen als baksteen met snijvoeg, hardhouten kozijnen en tevens hardhouten aftimmering van gootwerk, dakkapellen en overstekken. Het potdekselwerk van vezelcement is voorzien van RVS detaillering en zijn andere bouwdetails uitgevoerd in zwaar lood en zinkwerk. Hierdoor heeft de woning een luxe uitstraling, maar is het onderhoud minimaal.
De begane grond vloer bestaat uit een zwevende, dubbel gewapende betonvloer die volledig los van de wanden is gelegd op drukvaste foamglas isolatie, voorzien van vloerverwarming. Door de hoge thermische massa van de woning is er een aangenaam binnenklimaat. Door de hoge thermische massa van de woning is er een aangenaam binnenklimaat. De kap van de woning is opnieuw opgetrokken uit zwaar Douglas balkhout en Douglas dakbeschot, dit alles met oog voor vakmanschap en detaillering. De kap is aan de buitenzijde geïsoleerd met PIR isolatie, hierdoor is er geen kans op condensatie. Het gebruikte hout voor de kap is onder certificering brandwerend geïmpregneerd waardoor het veilig toepasbaar is.
Ook al het installatiewerk als waterleidingen en CV-infrastructuur zijn vernieuwd en uitgevoerd in koper. De elektra infrastructuur is is uitgebreid aangelegd met veel stopcontacten en lichtpunten, zowel functioneel als sfeerverlichting. De woning beschikt over 380 krachtstroom, aangelegd op diverse punten. De stoppenkast is voorzien van 24 groepen, waarvan een aantal zijn gekoppeld voor de krachtstroom.
Deze informatie is door ons met de nodige zorgvuldigheid samengesteld. Onzerzijds wordt echter geen enkele aansprakelijkheid aanvaard voor enige onvolledigheid, onjuistheid of anderszins, dan wel de gevolgen daarvan. Alle opgegeven maten en oppervlakten zijn indicatief. Van toepassing zijn de NVM voorwaarden.
De Meetinstructie is gebaseerd op de NEN2580. De Meetinstructie is bedoeld om een meer eenduidige manier van meten toe te passen voor het geven van een indicatie van de gebruiksoppervlakte. De Meetinstructie sluit verschillen in meetuitkomsten niet volledig uit, door bijvoorbeeld interpretatieverschillen, afrondingen of beperkingen bij het uitvoeren van de meting.
Wauw! Een unieke, herbouwde dijkwoning geheel in klassieke stijl maar met moderne accenten en de kwaliteitseisen van nu.
Namens de verkopers mogen wij u deze prachtige, instapklare woning aanbieden, gelegen op een rustig deel van de Zuidendijk met landelijk karakter.
De woning combineert een karaktervolle uitstraling met hedendaags comfort. Bij binnenkomst valt direct het lichtinval op, wat zorgt voor een fijne en open sfeer. De hoogwaardige maatwerk woonkeuken, opgetrokken uit volledig massief hardhout sluit perfect aan op het totaalplaatje en is met oog voor detail afgewerkt.
De woonkamer ligt op een lager niveau, wat zorgt voor een speelse en verrassende indeling. Strakke gestucte wanden en een moderne gevlinderde massieve betonvloer geven het geheel een eigentijdse uitstraling. Via de openslaande deuren wordt de verbinding met buiten optimaal benut.
Op de verdieping bevinden zich drie slaapkamers en een stijlvolle badkamer. De zichtbare houten dakconstructie voegt extra charme en sfeer toe. Opvallend aan de woning is de combinatie van industriële elementen, gebikt metselwerk en een volledig maatwerk interieur, waarbij ronde vormen de verbinding maken tussen de hardere industriële lijn en de verfijnde hoogwaardige afwerking.
De royale achtertuin, gelegen op het zuidwesten, is circa 12 meter breed en biedt volop ruimte om te genieten van de zon. Aan de zijkant van de woning is er parkeergelegenheid voor twee auto’s op eigen terrein.
Nieuwsgierig geworden? Maak snel een afspraak voor een bezichtiging en ervaar zelf de charme van deze bijzondere woning.
De oplevering van de woning is in overleg, maar kan binnen afzienbare tijd.
De indeling is als volgt:
Begane grond:
– Entree op dijkniveau.
– Garderoberuimte.
– Met marmer afgewerkte toiletruimte met fonteintje en doucheruimte. het toilet is voorzien van ingebouwde afzuiging en natuurlijke ventilatie.
– Kamer momenteel in gebruik als werkkamer, maar kan ook gebruikt worden als slaapkamer.
– Vaste kast met de opstelplaats van de c.v-ketel en meterkast.
– Moderne keuken aan de voorzijde is voorzien van keramische kookplaat met afzuiging, brede oven, vaatwasser, spoelbak, losstaande koelkast en diverse laden/kasten.
– Hoogteverschil richting de woonkamer, opvallend is hierbij de hoogte van 3 meter en aan de voorzijde zelfs 4 meter. Via de openslaande deuren is de achtertuin te bereiken.
Eerste verdieping:
– Slaapkamer aan de voorzijde (ca. 3.93 m x 2.34 m) met opstelplaats voor de wasapparatuur.
– Slaapkamer aan de achterzijde (ca. 5.54 m x 3.90 m) beschikt over openslaande deuren richting het dak van de uitbouw.
– Slaapkamer aan de westzijde (ca. 5.03 m x 2.58 m).
– De badkamer beschikt over een solid-surface ligbad, douche, toilet met ingebouwde afzuiging en wastafel. De badkamer is volledig maatwerk, waarbij de strakke solid-surface accentwand contrasteert met de massief granieten wand en vloer bekleding.
Buiten:
– De achtertuin is op het zuidwesten gesitueerd en aangelegd met natuursteen ‘kinderkopjes’ bestrating en schelpen, beplanting en nader in te zaaien strook grond aan de achterzijde. Ook heeft de tuin een hoogteverschil.
– De zijtuin is gesitueerd op het noordoosten en is aangelegd met natuursteen ‘kinderkopj...
– Berging (ca. 5.78 m x 2.76 m).
Diversen:
– Energielabel A.
– De bouw van het casco heeft tussen 2015 en 2018 plaatsgevonden.
– De badkamer is in 2023 geplaatst.
– De keuken is in 2022 geplaatst.
– De begane grond beschikt over vloerverwarming, de 1e verdieping is verwarmd via Jaga convectoren.
– C.v-ketel komt uit 2015.
– Hardhouten kozijnen met deels HR++ glas.
Constructie:
De woning is opnieuw gefundeerd op een paalfundering en is middels een dilatatievoeg losgezet van de directe buren. Het nieuwe casco van de woning is voorzien van een betonnen ringbalk met daarop een zware constructievloer. Vanuit deze basis is de begane grond opgebouwd met een stalen frame met ringbalkconstructie door het gehele huis. Een deel van deze constructie is in het zicht gelaten vanuit een architectonisch oogpunt. De opbouw is gedaan met kalkzandsteen wanden met daarbij veel aandacht voor de isolatie, het voorkomen van koudebruggen en het afvoeren van mogelijke condensatie. De buitenzijde van de woning is opgetrokken uit duurzame, onderhoudsvrije materialen als baksteen met snijvoeg, hardhouten kozijnen en tevens hardhouten aftimmering van gootwerk, dakkapellen en overstekken. Het potdekselwerk van vezelcement is voorzien van RVS detaillering en zijn andere bouwdetails uitgevoerd in zwaar lood en zinkwerk. Hierdoor heeft de woning een luxe uitstraling, maar is het onderhoud minimaal.
De begane grond vloer bestaat uit een zwevende, dubbel gewapende betonvloer die volledig los van de wanden is gelegd op drukvaste foamglas isolatie, voorzien van vloerverwarming. Door de hoge thermische massa van de woning is er een aangenaam binnenklimaat. Door de hoge thermische massa van de woning is er een aangenaam binnenklimaat. De kap van de woning is opnieuw opgetrokken uit zwaar Douglas balkhout en Douglas dakbeschot, dit alles met oog voor vakmanschap en detaillering. De kap is aan de buitenzijde geïsoleerd met PIR isolatie, hierdoor is er geen kans op condensatie. Het gebruikte hout voor de kap is onder certificering brandwerend geïmpregneerd waardoor het veilig toepasbaar is.
Ook al het installatiewerk als waterleidingen en CV-infrastructuur zijn vernieuwd en uitgevoerd in koper. De elektra infrastructuur is is uitgebreid aangelegd met veel stopcontacten en lichtpunten, zowel functioneel als sfeerverlichting. De woning beschikt over 380 krachtstroom, aangelegd op diverse punten. De stoppenkast is voorzien van 24 groepen, waarvan een aantal zijn gekoppeld voor de krachtstroom.
Deze informatie is door ons met de nodige zorgvuldigheid samengesteld. Onzerzijds wordt echter geen enkele aansprakelijkheid aanvaard voor enige onvolledigheid, onjuistheid of anderszins, dan wel de gevolgen daarvan. Alle opgegeven maten en oppervlakten zijn indicatief. Van toepassing zijn de NVM voorwaarden.
De Meetinstructie is gebaseerd op de NEN2580. De Meetinstructie is bedoeld om een meer eenduidige manier van meten toe te passen voor het geven van een indicatie van de gebruiksoppervlakte. De Meetinstructie sluit verschillen in meetuitkomsten niet volledig uit, door bijvoorbeeld interpretatieverschillen, afrondingen of beperkingen bij het uitvoeren van de meting.
- Status
- Beschikbaar
- Aanvaarding
- In overleg
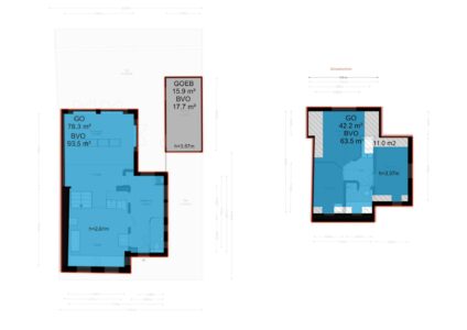
- Inhoud
- 435 m3
- Vraagprijs
- € 635.000,- k.k.
- Woonoppervlakte
- 121 m2
- Soort object
- Woonhuis
- Type woning
- Twee onder één kapwoning
- Bouwvorm
- Bestaande bouw
- Soort
- Eengezinswoning
- Bouwjaar
- 1910
- Ligging
- Aan rustige weg, In woonwijk
- Woonoppervlakte
- 121 m2
- Perceel oppervlakte
- 303 m2
- Oppervlakte externe bergruimte
- 16 m2
- Inhoud
- 435 m3
- Aantal kamers
- 5
- Aantal slaapkamers
- 4
- Isolatievormen
- Dakisolatie, Vloerisolatie, Volledig geïsoleerd, HR glas
- Verwarming
- CV ketel
- Warmwater
- CV ketel
- CV ketel type
- Nefit
- Tuintypen
- Achtertuin, Zijtuin
- Hoofdtuin
- Achtertuin
- Hoofdtuin oppervlakte
- 166 m2
- Positie
- Zuidwest
- Achterom
- Nee
- Kwaliteit
- Normaal
- Oppervlakte externe bergruimte
- 16 m2
- Soorten
- Vrijstaand steen
- Capaciteit
- 1
- Oppervlakte
- 16 m2
- Totaal aantal garages
- 1
- Dak type
- Zadeldak
- Voorzieningen
- Glasvezel kabel
- Permanente bewoning
- Ja
- Waardering
- Goed tot uitstekend
- Waardering
- Goed tot uitstekend
- Huidig gebruik
- Woonruimte
- Huidige bestemming
- Woonruimte

















