Langedaal 77 – Dordrecht, 3317 MB
Namens de verkopers presenteren wij deze keurig onderhouden geschakelde twee-onder-een kapwoning, gelegen aan de rand van het Villapark Dordtsche Hout! De woning biedt met ca. 168 m² aan woonoppervlakte volop ruimte en comfort. U beschikt hier over een royale living, een moderne badkamer en vier slaapkamers van ruim formaat. Op de begane grond bevindt zichLees verder
Namens de verkopers presenteren wij deze keurig onderhouden geschakelde twee-onder-een kapwoning, gelegen aan de rand van het Villapark Dordtsche Hout!
De woning biedt met ca. 168 m² aan woonoppervlakte volop ruimte en comfort. U beschikt hier over een royale living, een moderne badkamer en vier slaapkamers van ruim formaat. Op de begane grond bevindt zich een extra kamer die momenteel is ingericht als werkkamer, ideaal voor wie regelmatig thuis werkt. Deze ruimte leent zich echter ook uitstekend als speelkamer of praktische bijkeuken.
In de achtertuin is het heerlijk vertoeven. Dankzij het ruime formaat vindt u hier altijd een plek in de zon of juist in de schaduw. De tuin grenst aan een waterpartij en biedt een prachtig vrij uitzicht over water en groen. Aan de voorzijde is er parkeergelegenheid op eigen erf, terwijl er in de straat ook voldoende parkeerplaatsen aanwezig zijn.
De ligging is uitstekend: Villapark Dordtsche Hout, ligt centraal in Dordrecht ten opzichte van uitvalswegen als N-3, A-15 en A-16. (Basis)scholen, sport- en recreatievoorzieningen en winkels zijn allemaal binnen fietsafstand te vinden.
De oplevering van de woning kan in het vierde kwartaal van 2026 plaatsvinden (uiterlijk december).
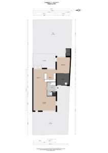
De indeling van de woning is als volgt:
Begane grond:
– Entree in de hal met trapopgang.
– Meterkast (9 groepen, ziggo aansluiting en glasvezelaansluiting, slimme meter, gasmeter en watermeter).
– Toiletruimte met fontein.
– De woonkamer is voorzien van een laminaatvloer, airconditioning en openslaande deuren richting de achtertuin.
– De open keuken is opgesteld in een U-vorm en is voorzien van een spoelbak met Quooker, vaatwasser, inductie kookplaat met een wok brander, oven, koelkast, vrieslades en diverse laden en kasten.
– De werkkamer aan de achterzijde beschikt over een deur richting de tuin en richting de berging.
– De berging aan de voorzijde (voormalig garage) is voorzien van elektra en verwarming.
Eerste verdieping:
– Overloop.
– Toiletruimte met fontein.
– De badkamer is voorzien van een inloopdouche, dubbele wastafel en een design radiator.
– Slaapkamer aan de voorzijde (ca. 4.74 m x 3.40 m) beschikt over een inloopkast en airconditioning.
– Slaapkamer aan de achterzijde (ca. 4.24 m x 2.37 m). Beide slaapkamers hebben een vaste kledingberging met schuifdeuren.
– Slaapkamer aan de achterzijde (ca. 3.26 m x 3.19 m).
Tweede verdieping:
– Berging met opstelplaats voor de wasapparatuur en de c.v.-combiketel (2018). Tevens hangt hier de mechanische ventilatie unit en de omvormer voor de zonnepanelen.
– Slaapkamer (ca. 4.63 m x 3.42 m) beschikt over een deur richting het dakterras.
Buiten:
– De voortuin is gesitueerd op het westen en is keurig aangelegd met bestrating en beplanting. De voortuin biedt ruimte voor het parkeren van twee auto’s op eigen grond.
– Het dakterras aan de voorzijde van de woning is gesitueerd op het westen en is voorzien van tegels.
– De achtertuin is gesitueerd op het oosten en grenst aan het water. De tuin is aangelegd met sierbestrating, een grasveld, diverse beplanting en een houten vlonder. Door de overkapping met elektrische zonwering is een gezellige zitgelegenheid gecreëerd. Tevens beschikt de tuin over een houten berging.
Vaste lasten:
Onroerende zaakbelasting : €490,– per jaar.
Waterschapsbelasting : €569,– per jaar.
Diversen:
– Energielabel A.
– De woning heeft (vuren) houten kozijnen met HR glas.
– Er liggen 13 zonnepanelen op het dak, welke in 2018 zijn geplaatst. Eén zonnepaneel levert 295 WP op.
– De keuken is in 2019 geplaatst.
Deze informatie is door ons met de nodige zorgvuldigheid samengesteld. Onzerzijds wordt echter geen enkele aansprakelijkheid aanvaard voor enige onvolledigheid, onjuistheid of anderszins, dan wel de gevolgen daarvan. Alle opgegeven maten en oppervlakten zijn indicatief. Van toepassing zijn de NVM voorwaarden.
De Meetinstructie is gebaseerd op de NEN2580. De Meetinstructie is bedoeld om een meer eenduidige manier van meten toe te passen voor het geven van een indicatie van de gebruiksoppervlakte. De Meetinstructie sluit verschillen in meetuitkomsten niet volledig uit, door bijvoorbeeld interpretatieverschillen, afrondingen of beperkingen bij het uitvoeren van de meting.
Namens de verkopers presenteren wij deze keurig onderhouden geschakelde twee-onder-een kapwoning, gelegen aan de rand van het Villapark Dordtsche Hout!
De woning biedt met ca. 168 m² aan woonoppervlakte volop ruimte en comfort. U beschikt hier over een royale living, een moderne badkamer en vier slaapkamers van ruim formaat. Op de begane grond bevindt zich een extra kamer die momenteel is ingericht als werkkamer, ideaal voor wie regelmatig thuis werkt. Deze ruimte leent zich echter ook uitstekend als speelkamer of praktische bijkeuken.
In de achtertuin is het heerlijk vertoeven. Dankzij het ruime formaat vindt u hier altijd een plek in de zon of juist in de schaduw. De tuin grenst aan een waterpartij en biedt een prachtig vrij uitzicht over water en groen. Aan de voorzijde is er parkeergelegenheid op eigen erf, terwijl er in de straat ook voldoende parkeerplaatsen aanwezig zijn.
De ligging is uitstekend: Villapark Dordtsche Hout, ligt centraal in Dordrecht ten opzichte van uitvalswegen als N-3, A-15 en A-16. (Basis)scholen, sport- en recreatievoorzieningen en winkels zijn allemaal binnen fietsafstand te vinden.
De oplevering van de woning kan in het vierde kwartaal van 2026 plaatsvinden (uiterlijk december).
De indeling van de woning is als volgt:
Begane grond:
– Entree in de hal met trapopgang.
– Meterkast (9 groepen, ziggo aansluiting en glasvezelaansluiting, slimme meter, gasmeter en watermeter).
– Toiletruimte met fontein.
– De woonkamer is voorzien van een laminaatvloer, airconditioning en openslaande deuren richting de achtertuin.
– De open keuken is opgesteld in een U-vorm en is voorzien van een spoelbak met Quooker, vaatwasser, inductie kookplaat met een wok brander, oven, koelkast, vrieslades en diverse laden en kasten.
– De werkkamer aan de achterzijde beschikt over een deur richting de tuin en richting de berging.
– De berging aan de voorzijde (voormalig garage) is voorzien van elektra en verwarming.
Eerste verdieping:
– Overloop.
– Toiletruimte met fontein.
– De badkamer is voorzien van een inloopdouche, dubbele wastafel en een design radiator.
– Slaapkamer aan de voorzijde (...
– Slaapkamer aan de achterzijde (ca. 4.24 m x 2.37 m). Beide slaapkamers hebben een vaste kledingberging met schuifdeuren.
– Slaapkamer aan de achterzijde (ca. 3.26 m x 3.19 m).
Tweede verdieping:
– Berging met opstelplaats voor de wasapparatuur en de c.v.-combiketel (2018). Tevens hangt hier de mechanische ventilatie unit en de omvormer voor de zonnepanelen.
– Slaapkamer (ca. 4.63 m x 3.42 m) beschikt over een deur richting het dakterras.
Buiten:
– De voortuin is gesitueerd op het westen en is keurig aangelegd met bestrating en beplanting. De voortuin biedt ruimte voor het parkeren van twee auto’s op eigen grond.
– Het dakterras aan de voorzijde van de woning is gesitueerd op het westen en is voorzien van tegels.
– De achtertuin is gesitueerd op het oosten en grenst aan het water. De tuin is aangelegd met sierbestrating, een grasveld, diverse beplanting en een houten vlonder. Door de overkapping met elektrische zonwering is een gezellige zitgelegenheid gecreëerd. Tevens beschikt de tuin over een houten berging.
Vaste lasten:
Onroerende zaakbelasting : €490,– per jaar.
Waterschapsbelasting : €569,– per jaar.
Diversen:
– Energielabel A.
– De woning heeft (vuren) houten kozijnen met HR glas.
– Er liggen 13 zonnepanelen op het dak, welke in 2018 zijn geplaatst. Eén zonnepaneel levert 295 WP op.
– De keuken is in 2019 geplaatst.
Deze informatie is door ons met de nodige zorgvuldigheid samengesteld. Onzerzijds wordt echter geen enkele aansprakelijkheid aanvaard voor enige onvolledigheid, onjuistheid of anderszins, dan wel de gevolgen daarvan. Alle opgegeven maten en oppervlakten zijn indicatief. Van toepassing zijn de NVM voorwaarden.
De Meetinstructie is gebaseerd op de NEN2580. De Meetinstructie is bedoeld om een meer eenduidige manier van meten toe te passen voor het geven van een indicatie van de gebruiksoppervlakte. De Meetinstructie sluit verschillen in meetuitkomsten niet volledig uit, door bijvoorbeeld interpretatieverschillen, afrondingen of beperkingen bij het uitvoeren van de meting.
- Status
- Verkocht onder voorbehoud
- Aanvaarding
- In overleg
- Inhoud
- 581 m3
- Vraagprijs
- € 695.000,- k.k.
- Woonoppervlakte
- 168 m2
- Soort object
- Woonhuis
- Type woning
- Geschakelde twee onder één kapwoning
- Bouwvorm
- Bestaande bouw
- Soort
- Eengezinswoning
- Bouwjaar
- 1999
- Ligging
- Aan water, In woonwijk, Vrij uitzicht
- Woonoppervlakte
- 168 m2
- Perceel oppervlakte
- 271 m2
- Oppervlakte externe bergruimte
- 0 m2
- Inhoud
- 581 m3
- Aantal kamers
- 7
- Aantal slaapkamers
- 4
- Isolatievormen
- Muurisolatie, Vloerisolatie, Dubbelglas, HR glas
- Verwarming
- CV ketel
- Warmwater
- CV ketel
- CV ketel type
- Vaillant
- Tuintypen
- Achtertuin, Voortuin
- Hoofdtuin
- Achtertuin
- Hoofdtuin oppervlakte
- 113 m2
- Positie
- Oost
- Achterom
- Nee
- Kwaliteit
- Verzorgd
- Soort
- Aangebouwd hout
- Oppervlakte externe bergruimte
- 0 m2
- Soorten
- Geen garage
- Dak type
- Lessenaardak
- Voorzieningen
- Mechanische ventilatie, Buitenzonwering, Airconditioning, Glasvezel kabel, Domtica, Zonnepanelen
- Permanente bewoning
- Ja
- Waardering
- Uitstekend
- Waardering
- Uitstekend
- Huidig gebruik
- Woonruimte
- Huidige bestemming
- Woonruimte
Er is geen brochure gevonden.















