Jasmijnstraat 10 – Dordrecht, 3319 HH
Ruime eengezinswoning met verassend diepe achtertuin op een toplocatie! Namens de verkopers mogen wij de Jasmijnstraat 10 te koop aanbieden. Deze woning is jarenlang met zorg en aandacht bewoond, maar nu is het tijd voor nieuwe bewoners die hier met net zoveel plezier hun thuis zullen creëren. De woning biedt een lichte doorzonwoonkamer, een keukenLees verder
Ruime eengezinswoning met verassend diepe achtertuin op een toplocatie!
Namens de verkopers mogen wij de Jasmijnstraat 10 te koop aanbieden. Deze woning is jarenlang met zorg en aandacht bewoond, maar nu is het tijd voor nieuwe bewoners die hier met net zoveel plezier hun thuis zullen creëren.
De woning biedt een lichte doorzonwoonkamer, een keuken aan de achterzijde, vier comfortabele slaapkamers en een royale achtertuin op het westen. De sfeervol aangelegde tuin heeft een vrije ligging, waardoor je hier optimaal kunt genieten van rust, ruimte en privacy.
Dubbeldam is voor veel mensen een fijne wijk om te wonen. Diverse basisscholen, het gezellige Damplein met diverse winkels, de sportvelden en zwembad De Dubbel zijn allen in de directe omgeving. De Dordtse Biesbosch bevindt zich op fietsafstand evenals het stadscentrum van Dordrecht. Bovendien is de Jasmijnstraat goed bereikbaar door middel van het openbaar vervoer en diverse uitvalswegen.
Maakt u van deze fijne tussenwoning uw droomhuis? Neem contact op met ons kantoor en plan een bezichtiging in!
De oplevering van de woning is in februari 2026 gewenst.
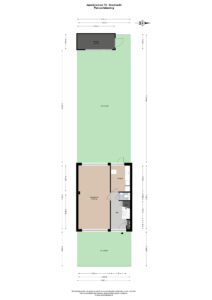
De indeling van de woning is als volgt:
Begane grond:
– Entree in de hal.
– Meterkast (8 groepen, twee aardlekschakelaar, extra groep voor de zonnepanelen en glasvezelaansluiting).
– Bergruimte onder de trap.
– Toiletruimte met fontein.
– Keuken aan de achterzijde beschikt over een koelkast met vriesvak, inductie kookplaat met afzuiging, spoelbak en diverse laden en kasten. Tevens bevindt zich hier de aansluiting voor de wasapparatuur.
– De doorzonwoonkamer beschikt over een eikenhouten vloer.
Eerste verdieping:
– Overloop met een vaste kast.
– De badkamer beschikt over een wastafel, douchecabine, toilet en designradiator.
– Slaapkamer aan de voorzijde (ca. 3.07 m x 3.61 m) beschikt over vaste kasten.
– Slaapkamer aan de achterzijde (ca. 3.53 m x 3.61 m) beschikt over vaste kasten.
– Slaapkamer aan de achterzijde (ca. 2.21 m x 2.61 m).
Tweede verdieping:
– De tweede verdieping is nog vrij in te delen. De ruimte is geschikt voor een slaapkamer (ca. 4.49 m x 5.96 m). Tevens bevindt zicht hier de opstelplaats voor de c.v.-combiketel (2007).
Tuin:
– De voortuin is keurig aangelegd met sierbestrating en diverse beplanting. De voorgevel beschikt over zonwering.
– De groene achtertuin is gesitueerd op het westen en is maar liefst 15 meter diep. Achterin staat een stenen berging welke is voorzien van een betonvloer en elektra. Tevens beschikt de tuin over een achterom en de achtergevel over zonwering.
Diversen:
– De woning beschikt over 9 zonnepanelen uit 2023.
– Kwaaitaal vloer aanwezig met beperkte schade (zie rapportage van Argus).
– Houten en kunststof kozijnen met grotendeels dubbelglas.
– Energielabel B.
Toelichting NEN2580
Deze informatie is door ons met de nodige zorgvuldigheid samengesteld. Onzerzijds wordt echter geen enkele aansprakelijkheid aanvaard voor enige onvolledigheid, onjuistheid of anderszins, dan wel de gevolgen daarvan. Alle opgegeven maten en oppervlakten zijn indicatief. Van toepassing zijn de NVM voorwaarden.
De Meetinstructie is gebaseerd op de NEN2580. De Meetinstructie is bedoeld om een meer eenduidige manier van meten toe te passen voor het geven van een indicatie van de gebruiksoppervlakte. De Meetinstructie sluit verschillen in meetuitkomsten niet volledig uit, door bijvoorbeeld interpretatieverschillen, afrondingen of beperkingen bij het uitvoeren van de meting.
Een tip van ons:
Wij behartigen de belangen van de verkopende partij. Neem uw eigen NVM-aankoopmakelaar mee!
Ruime eengezinswoning met verassend diepe achtertuin op een toplocatie!
Namens de verkopers mogen wij de Jasmijnstraat 10 te koop aanbieden. Deze woning is jarenlang met zorg en aandacht bewoond, maar nu is het tijd voor nieuwe bewoners die hier met net zoveel plezier hun thuis zullen creëren.
De woning biedt een lichte doorzonwoonkamer, een keuken aan de achterzijde, vier comfortabele slaapkamers en een royale achtertuin op het westen. De sfeervol aangelegde tuin heeft een vrije ligging, waardoor je hier optimaal kunt genieten van rust, ruimte en privacy.
Dubbeldam is voor veel mensen een fijne wijk om te wonen. Diverse basisscholen, het gezellige Damplein met diverse winkels, de sportvelden en zwembad De Dubbel zijn allen in de directe omgeving. De Dordtse Biesbosch bevindt zich op fietsafstand evenals het stadscentrum van Dordrecht. Bovendien is de Jasmijnstraat goed bereikbaar door middel van het openbaar vervoer en diverse uitvalswegen.
Maakt u van deze fijne tussenwoning uw droomhuis? Neem contact op met ons kantoor en plan een bezichtiging in!
De oplevering van de woning is in februari 2026 gewenst.
De indeling van de woning is als volgt:
Begane grond:
– Entree in de hal.
– Meterkast (8 groepen, twee aardlekschakelaar, extra groep voor de zonnepanelen en glasvezelaansluiting).
– Bergruimte onder de trap.
– Toiletruimte met fontein.
– Keuken aan de achterzijde beschikt over een koelkast met vriesvak, inductie kookplaat met afzuiging, spoelbak en diverse laden en kasten. Tevens bevindt zich hier de aansluiting voor de wasapparatuur.
– De doorzonwoonkamer beschikt over een eikenhouten vloer.
Eerste verdieping:
– Overloop met een vaste kast.
– De badkamer beschikt over een wastafel, douchecabine, toilet en designradiator.
– Slaapkamer aan de voor...
– Slaapkamer aan de achterzijde (ca. 3.53 m x 3.61 m) beschikt over vaste kasten.
– Slaapkamer aan de achterzijde (ca. 2.21 m x 2.61 m).
Tweede verdieping:
– De tweede verdieping is nog vrij in te delen. De ruimte is geschikt voor een slaapkamer (ca. 4.49 m x 5.96 m). Tevens bevindt zicht hier de opstelplaats voor de c.v.-combiketel (2007).
Tuin:
– De voortuin is keurig aangelegd met sierbestrating en diverse beplanting. De voorgevel beschikt over zonwering.
– De groene achtertuin is gesitueerd op het westen en is maar liefst 15 meter diep. Achterin staat een stenen berging welke is voorzien van een betonvloer en elektra. Tevens beschikt de tuin over een achterom en de achtergevel over zonwering.
Diversen:
– De woning beschikt over 9 zonnepanelen uit 2023.
– Kwaaitaal vloer aanwezig met beperkte schade (zie rapportage van Argus).
– Houten en kunststof kozijnen met grotendeels dubbelglas.
– Energielabel B.
Toelichting NEN2580
Deze informatie is door ons met de nodige zorgvuldigheid samengesteld. Onzerzijds wordt echter geen enkele aansprakelijkheid aanvaard voor enige onvolledigheid, onjuistheid of anderszins, dan wel de gevolgen daarvan. Alle opgegeven maten en oppervlakten zijn indicatief. Van toepassing zijn de NVM voorwaarden.
De Meetinstructie is gebaseerd op de NEN2580. De Meetinstructie is bedoeld om een meer eenduidige manier van meten toe te passen voor het geven van een indicatie van de gebruiksoppervlakte. De Meetinstructie sluit verschillen in meetuitkomsten niet volledig uit, door bijvoorbeeld interpretatieverschillen, afrondingen of beperkingen bij het uitvoeren van de meting.
Een tip van ons:
Wij behartigen de belangen van de verkopende partij. Neem uw eigen NVM-aankoopmakelaar mee!
- Status
- Beschikbaar
- Aanvaarding
- In overleg
- Inhoud
- 437 m3
- Vraagprijs
- € 400.000,- k.k.
- Woonoppervlakte
- 112 m2
- Soort object
- Woonhuis
- Type woning
- Tussenwoning
- Bouwvorm
- Bestaande bouw
- Soort
- Eengezinswoning
- Bouwjaar
- 1969
- Ligging
- Aan rustige weg, In woonwijk, Beschutte ligging
- Woonoppervlakte
- 112 m2
- Perceel oppervlakte
- 175 m2
- Oppervlakte externe bergruimte
- 8 m2
- Inhoud
- 437 m3
- Aantal kamers
- 5
- Aantal slaapkamers
- 4
- Isolatievormen
- Dakisolatie, Muurisolatie, Vloerisolatie, Grotendeels dubbelglas
- Verwarming
- CV ketel
- Warmwater
- CV ketel
- CV ketel type
- Remeha Avanta
- Tuintypen
- Achtertuin, Voortuin
- Hoofdtuin
- Achtertuin
- Hoofdtuin oppervlakte
- 90 m2
- Positie
- West
- Achterom
- Ja
- Kwaliteit
- Verzorgd
- Soort
- Aangebouwd steen
- Oppervlakte externe bergruimte
- 8 m2
- Voorzieningen
- Voorzien van elektra
- Soorten
- Geen garage
- Dak type
- Zadeldak
- Voorzieningen
- Zonnepanelen
- Permanente bewoning
- Ja
- Waardering
- Goed
- Waardering
- Goed
- Huidig gebruik
- Woonruimte
- Huidige bestemming
- Woonruimte
Er is geen brochure gevonden.

















